


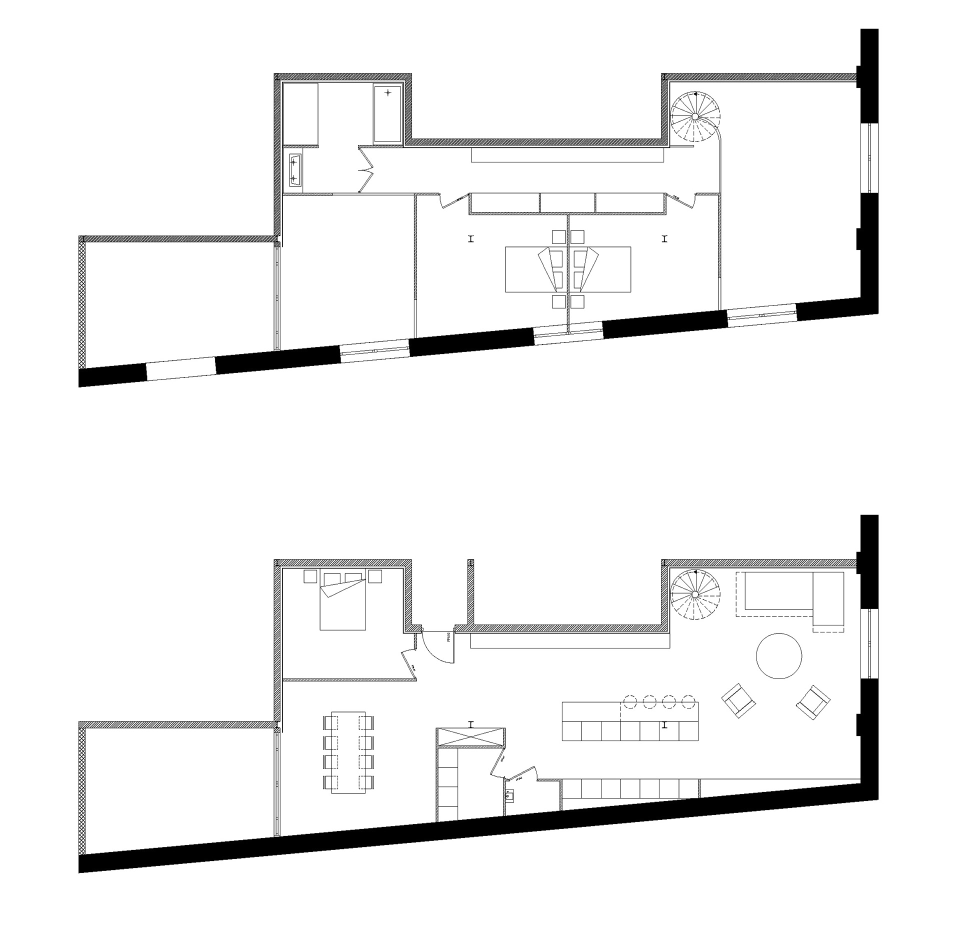
Plans d'aménagement : un niveau est créé en mezzanine pour intégrer l'ensemble du programme.

La grande hauteur sous plafond est conservée pour les pièces de réception, ici la salle à manger.

Une galerie vitrée dévoile toute la hauteur du lieu jusqu'aux voûtains en briques.

Le projet favorise l'imbrication de vues entre les pièces de chaque étage.

La cuisine équipée est insérée sous le volume de la mezzanine dans une échelle plus domestique.