état existant
état projet
plan existant : rez-de-chaussée
démolitions / reconstructions
façades projet
façades existantes
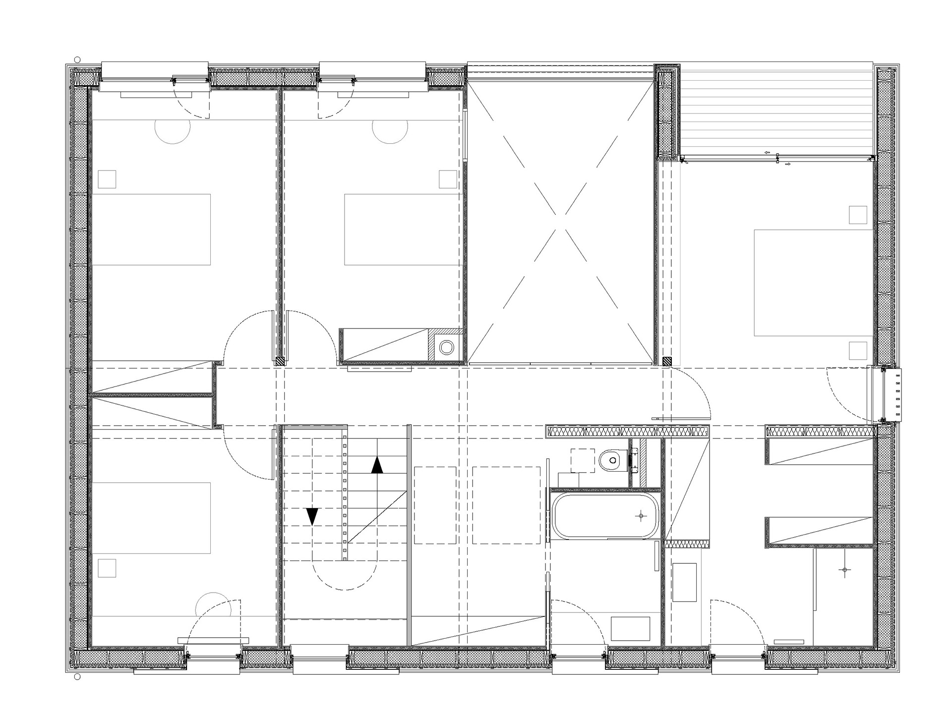
plan de la surélévation
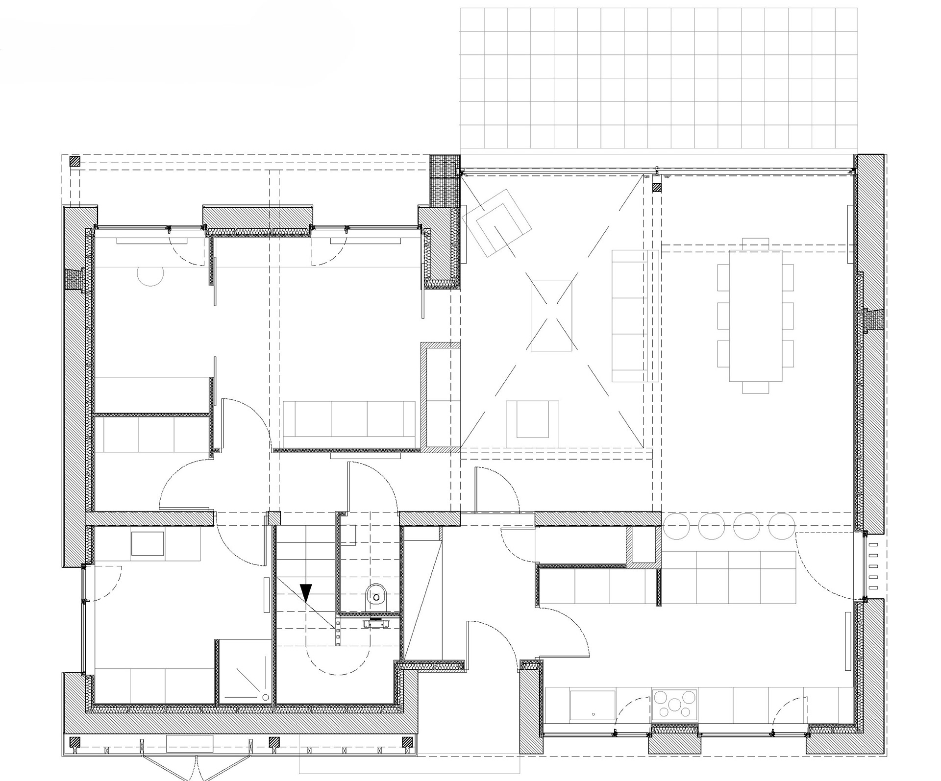
plan du RDC rénové
Lieu: Wasquehal Maîtrise d’ouvrage: client privé Maîtrise d'œuvre: francois lefelle, architecte Programme: rénovation et extension d'une maison par surélévation. Bâtiment passif. Surfaces : 111 m² en rénovation et 111 m² en extension neuve Calendrier: projet sans suite Coût: NC crédits images & photos : francois lefelle
état existant
état projet
plan existant : rez-de-chaussée
démolitions / reconstructions
façades projet
façades existantes
plan de la surélévation
plan du RDC rénové