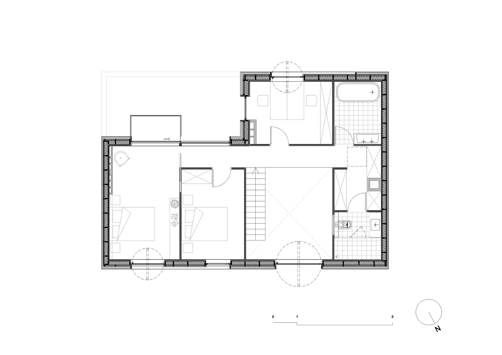
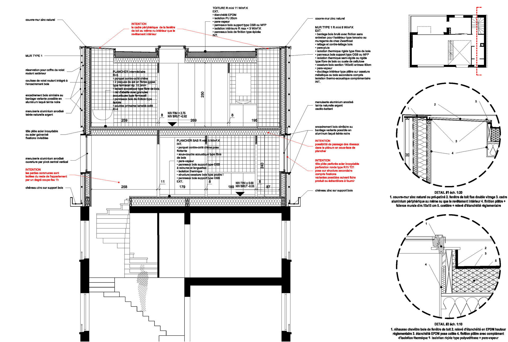
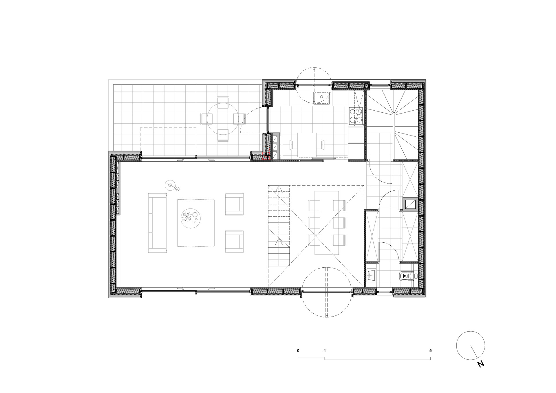
Lieu: Lille Maîtrise d’ouvrage: client privé Maîtrise d'œuvre: francois lefelle, architecte Programme: création d'un appartement en duplex Surface: 111 m² Calendrier: livré en 2020 Coût: NC crédits images & photos : francois lefelle, mathilde piollé