à propos
projets
écrits
contact
à propos
projets
écrits
contact
françois lefelle architecte françois lefelle architecte françois lefelle architecte

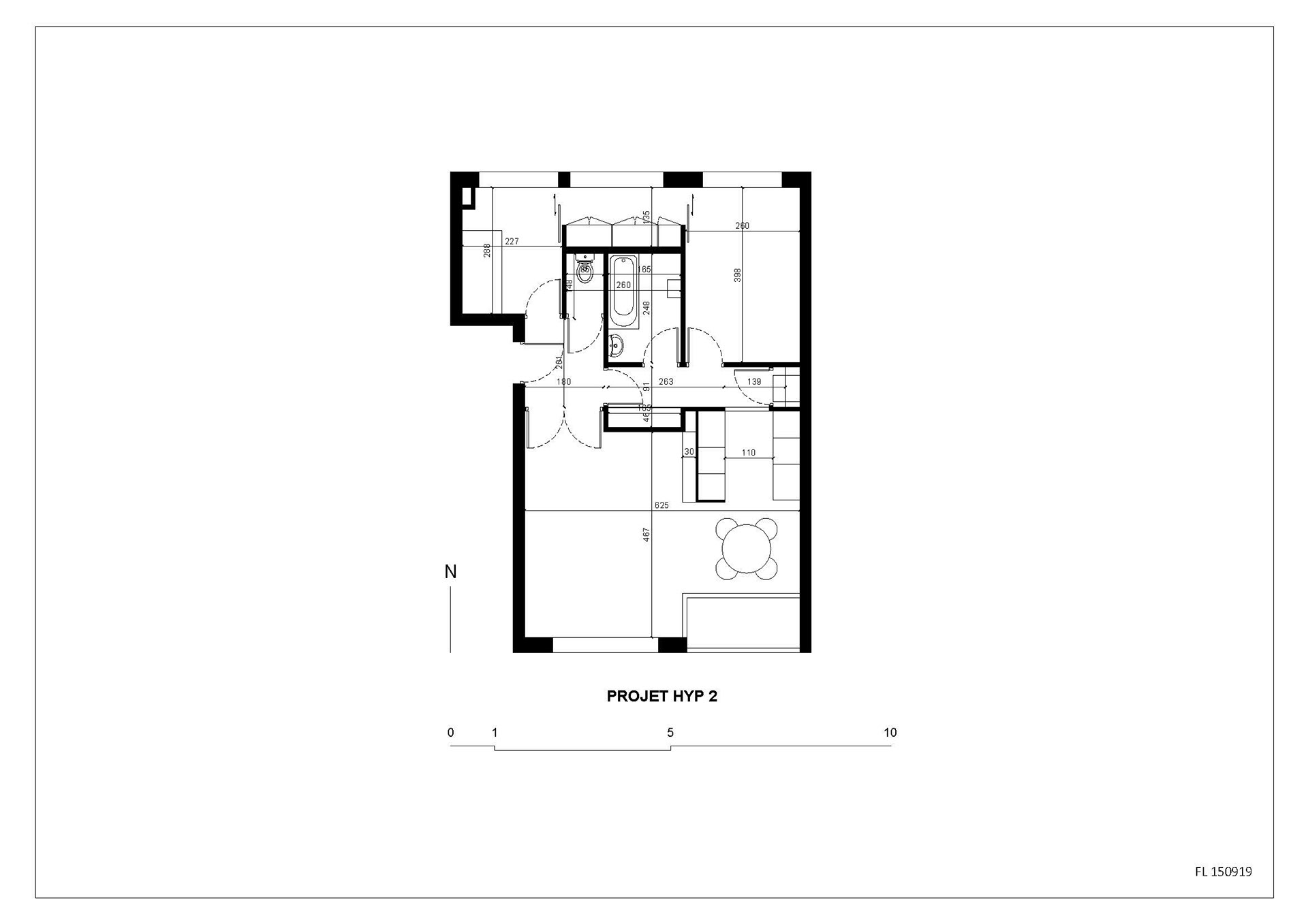
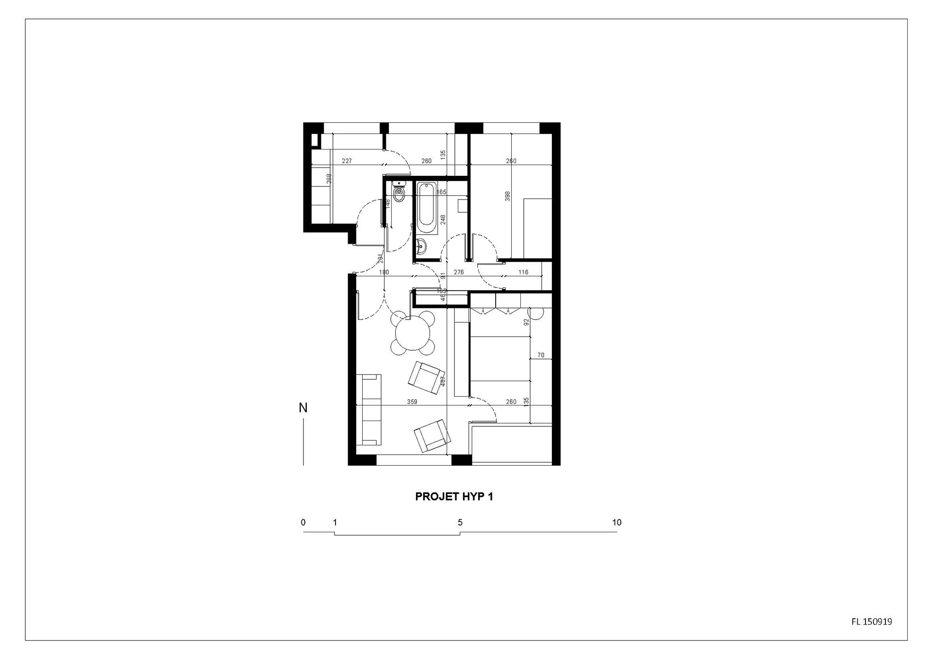
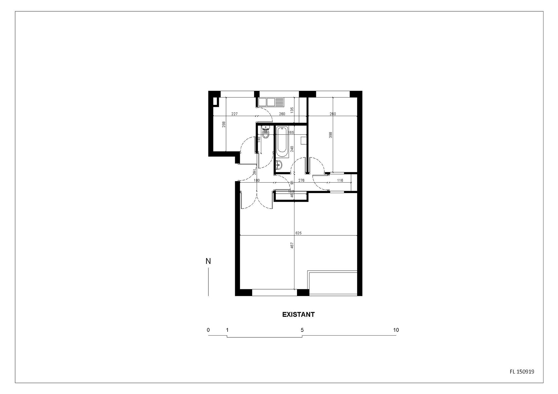
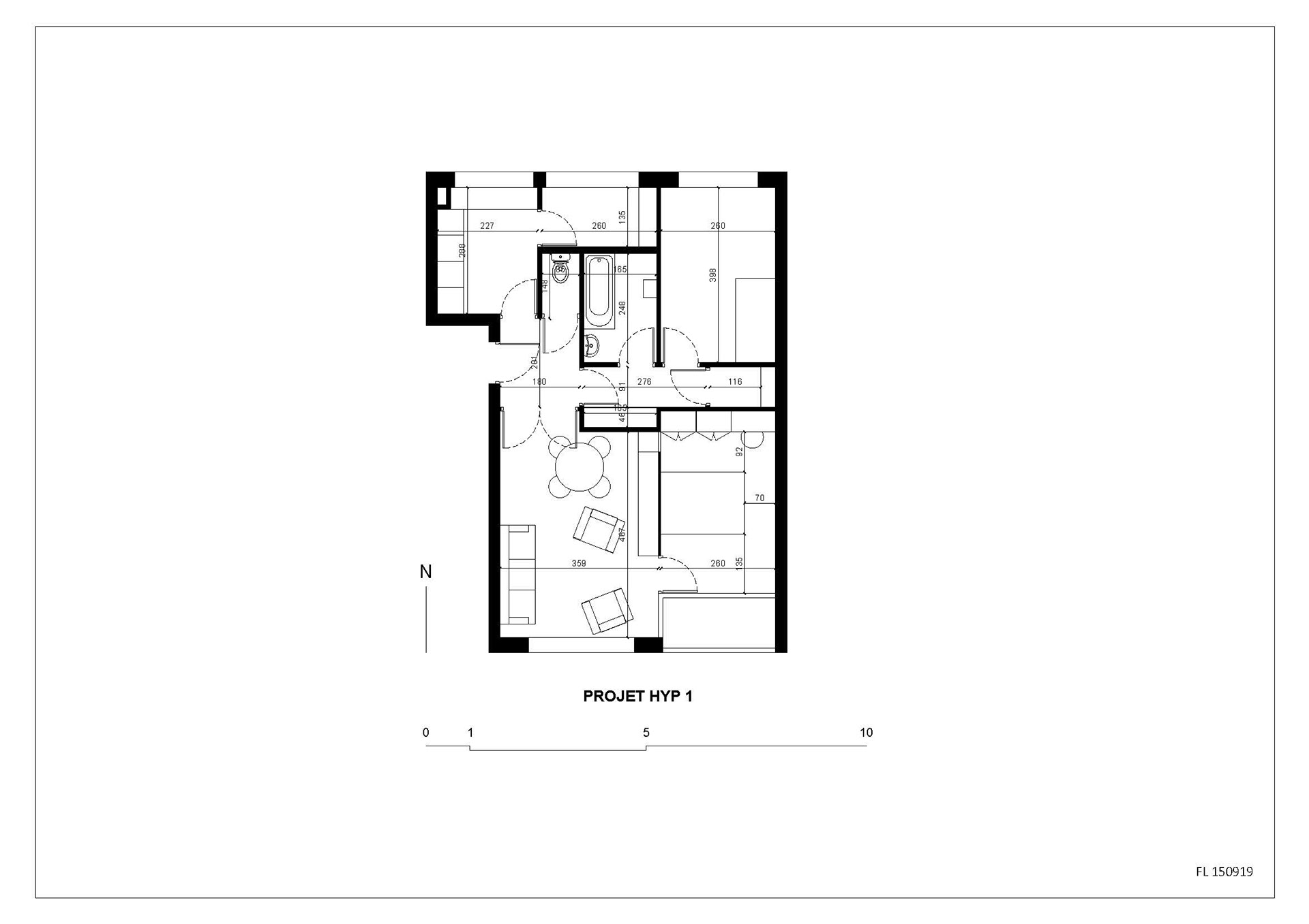
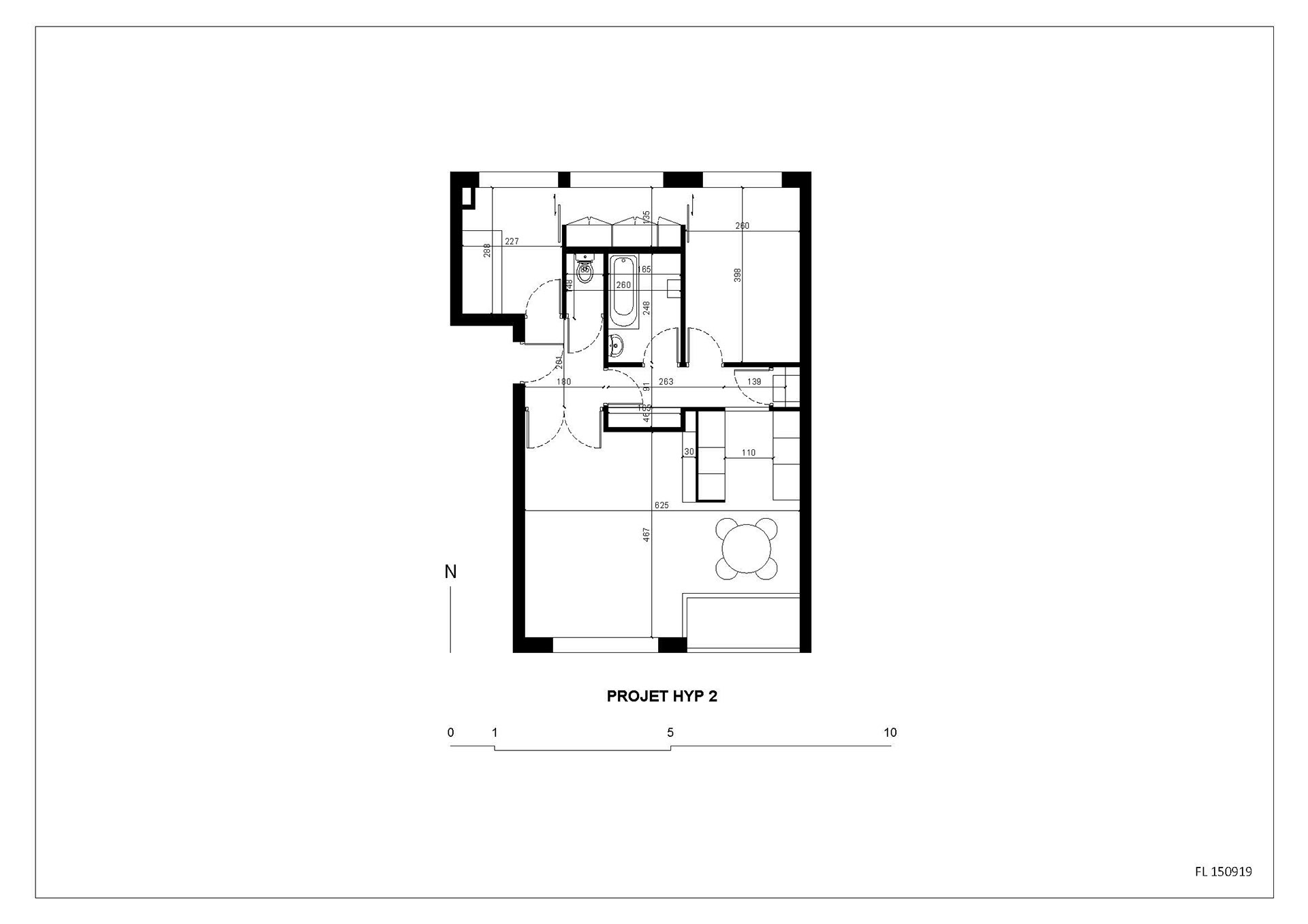
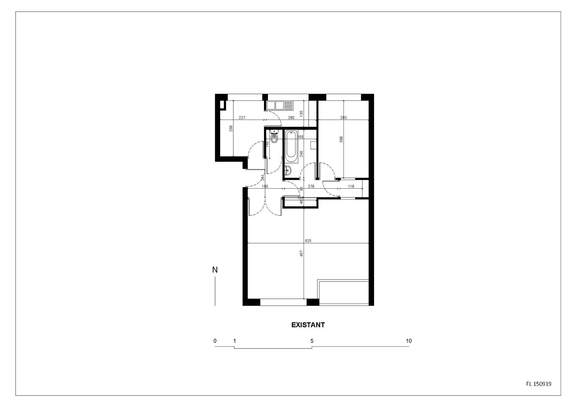
aménagement d'un appartement

Transformation d'un T2 en T3 à La Madeleine

Découvrez les dernières réalisations

europan 13
aménagement de 3 cabinets médicaux
extension d'une maison individuelle
villa urbaine
centre culturel et halle de marché
aménagements urbains
extension d'une maison individuelle
surélévation d'un immeuble existant
aménagement d'un bar à bières
aménagements de lofts
↑Back to Top
06 76 82 20 64 • contact@lefelle.com • 93 rue Pasteur 59110 La Madeleine • siren 795 324 078 • ordre des architectes n° 082122