à propos
projets
écrits
contact
à propos
projets
écrits
contact

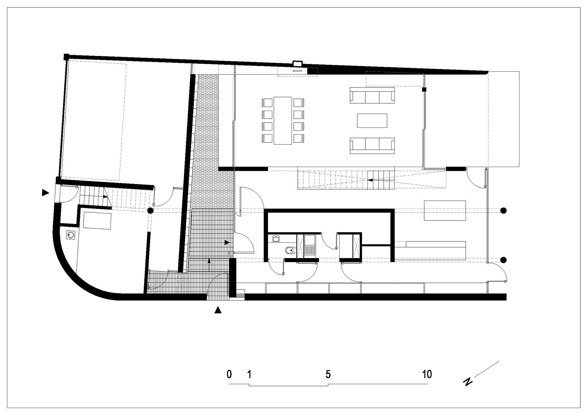
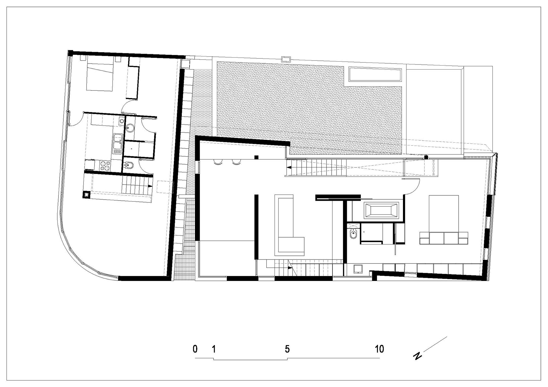
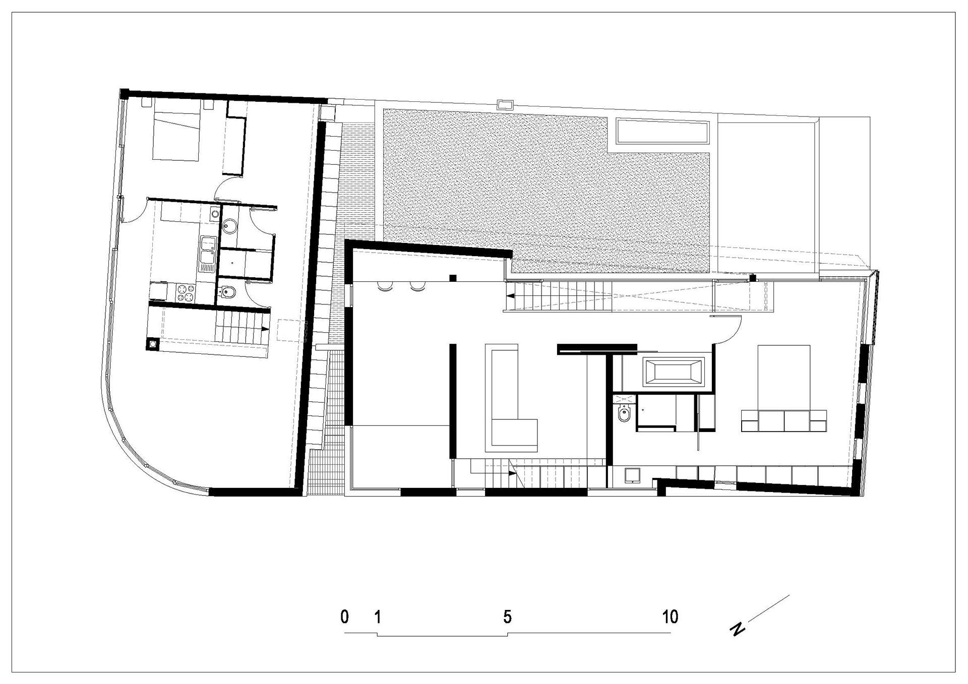
villa urbaine

Création d'une villa urbaine contemporaine à Tourcoing, Thierry Baron et Philippe Louguet Architectes, chef de projet.

photos et photomontages: François Lefelle

Découvrez les dernières réalisations

aménagement d'un bar à bières
aménagements de lofts
extension d'une maison individuelle
centre culturel et halle de marché
aménagements urbains
extension dans un immeuble en copropriété
extension d'une maison individuelle
aménagement d'un appartement
europan 13
surélévation d'un immeuble existant
↑Back to Top
06 76 82 20 64 • contact@lefelle.com • 93 rue Pasteur 59110 La Madeleine • siren 795 324 078 • ordre des architectes n° 082122